The Western Baths
Glasgow
Status
RIBA Stage 1
Contract
£2.5 million
Client
The Western Baths Club
The project seeks to work with the existing members, staff, committee and key stakeholders involved with the Western Baths Club, to develop a brief as a result of an engagement process. We are committed to letting those that use and love the Western Baths to be fundamental in deciding its future.
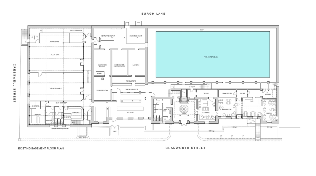
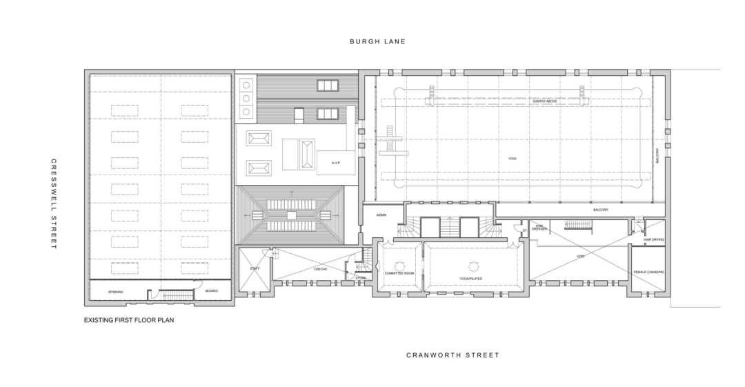
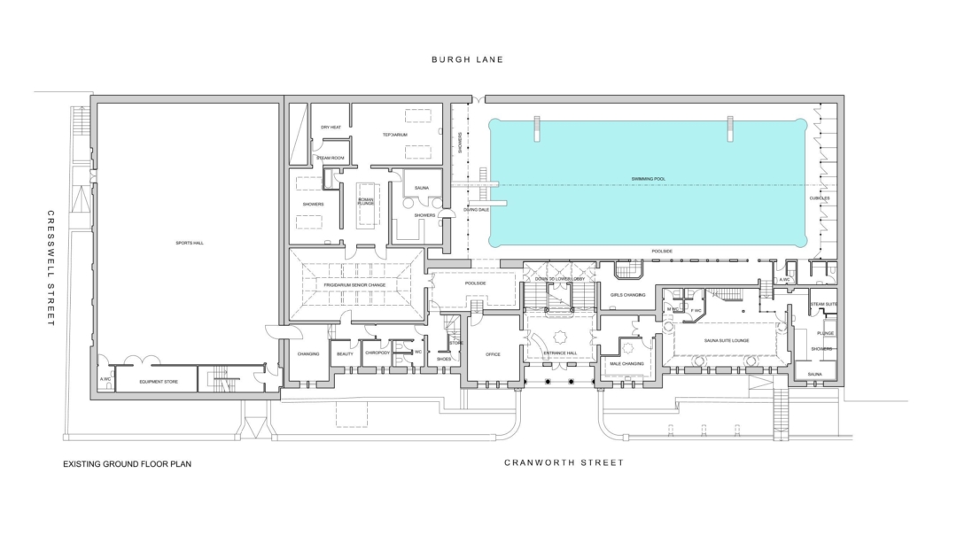
Key requirements for the proposals will be ensuring access for all, significant upgrades to the building fabric to improve energy efficiency and bringing underused spaces back to a more purposeful function. The project will also see upgrades to the pool and spa facilities and rethink of the organisation of spaces to make the building more coherent to navigate and efficient to operate.
The Western Baths is a category A Listed building which has a charming and homely feel, that the members see as one of its key assets. The architectural proposals will ensure maintaining the hertiage values and character of the building is at the forefront of decision making.
The project will be a long term vision, phased to allow spend to be prioritised to the most pressing concerns first, whilst enabling future change. We are also to produce a design guide, that will inform future decision making as spaces are upgraded - ensuring a coherent aesthetic is achieved throughout the building over time.
