Ullswater
New UYC clubhouse
Ullswater
New UYC clubhouse
Status
Competition Entry February 2011
For
Ullswater Yachting Club
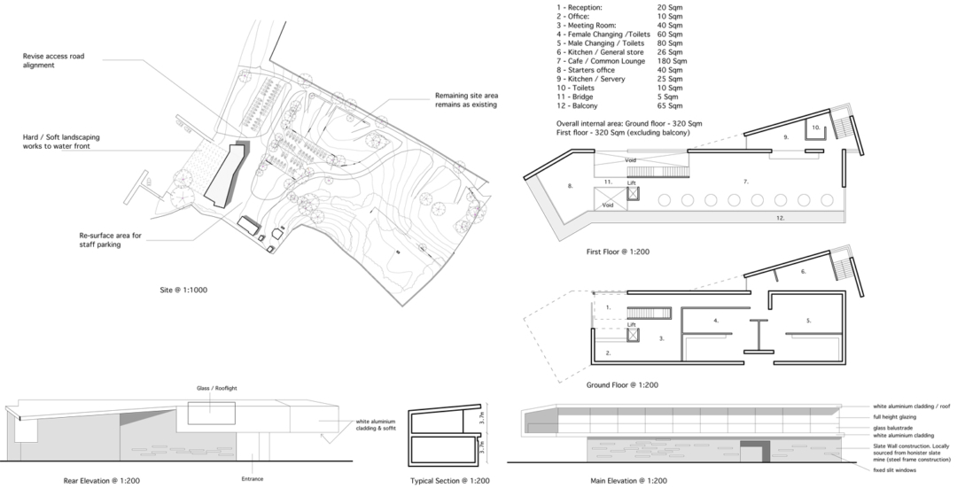
We were immediately struck by beautiful horizontal layers of landscaping the site offered to the eye. The main components are the water, the hills and the sky which are accentuated by the manner in which man made routes traverse the area and how the landscaping changes as it rises up the hillside moving from arable fields to bare rock. This reaction to the site transfered into a strong horizontal shape which sat comfortably along the shore edge allowing all builder users access to the magnificent views. It is important that the clubhouse has a strong relationship with the water and the exiting activity associated with the yachts. We located the new clubhouse is a similar position to the existing building as we felt the distance between the building edge and the water formed the ideal size to create a new informal quayside.
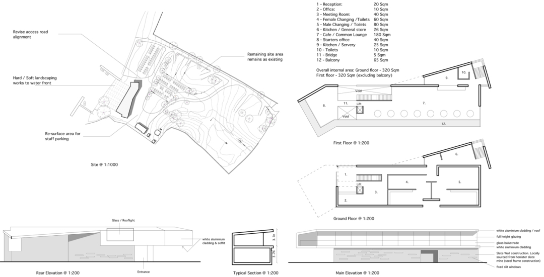
The horizontality and contrast between the ground and first floors is further emphasised by the treatment of the fenestration. The ground floor has small windows integrated with the stone coursing to have the appearance of missing stones whilst the first floor is a sweeping glazed screen opening out onto a balcony overlooking the lake.
