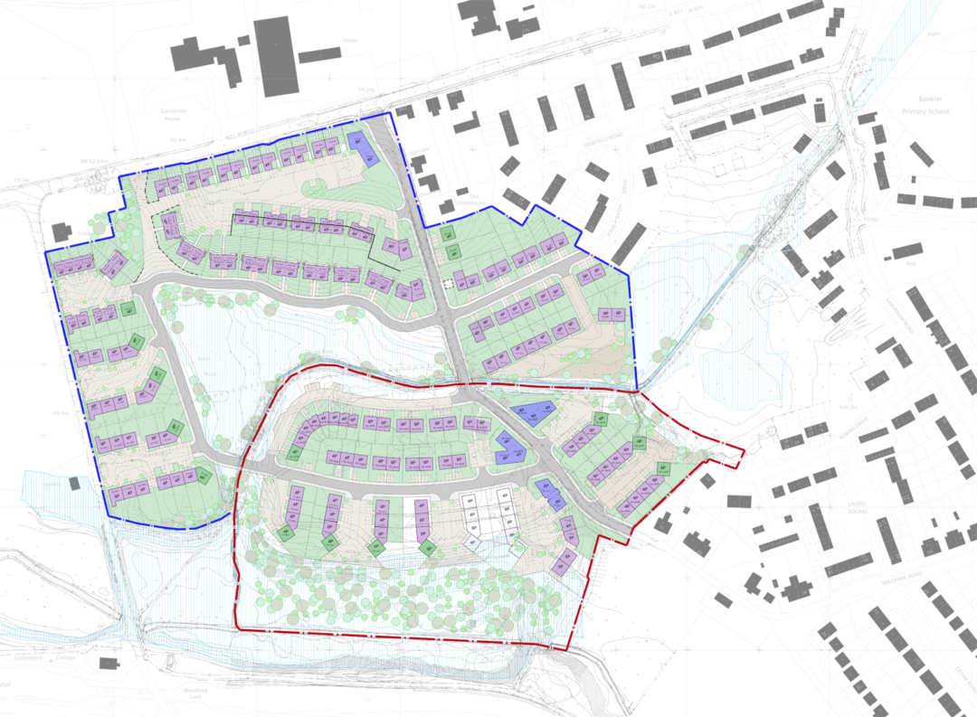
Bankier Masterplan
Bankier Distillery, Falkirk
Bankier Masterplan
Bankier Distillery, Falkirk
Status
Feasibility Completed April 2011
Client
Falkirk Council & JBB Bennett
Contract
TBC
Collective Architecture were appointed by Falkirk Council and JBB Bennett to undertake a feasibility study for a masterplan of approximately 200 new dwellings on the site of the former Bankier Distillery.
The site forms part of Falkirk Council's Development Framework for Banknock and Haggs. There are a number of constraints which are critical to the development of the masterplan, each of which had to be carefully addressed, including significant areas of flooding, existing watercourses, sloping terrain, poor access and proximity to the Antonine Wall.
