Powderhall Stables
Edinburgh
Status
RIBA Stage 5
Contract
£2 million
Client
City of Edinburgh Council
Funders
RCGF, Edinburgh World Hertiage
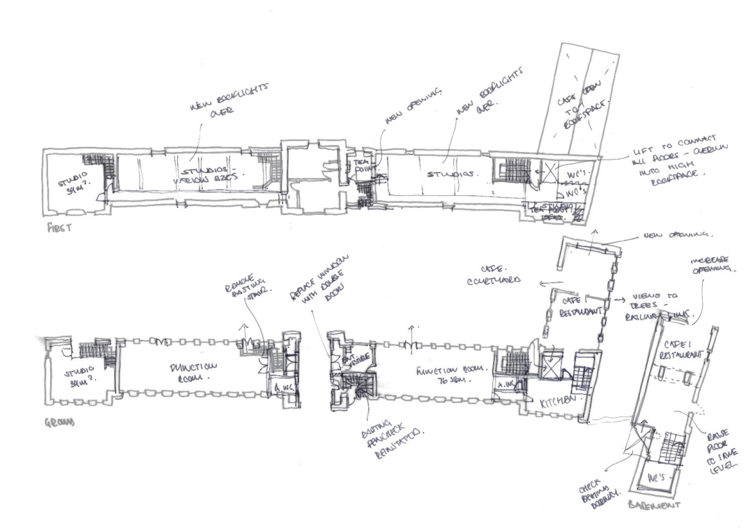
Powderhall Stables is a Category B listed building, designed by the City Engineer John Cooper, constructed in 1893. The building was purpose built to house the horses that transported the city’s waste to the waste disposal works at Powderhall. The ground floor was used as the stables, and associated workshops such as the smithy and saddlers shop. The central part of the building on both the ground and first floor has quite a different character, as this was used as the office spaces. Here there are fireplaces, cornices, lath and plaster linings and a stone pencheck stair; which is in stark contrast to more rudimentary, robust nature of the rest of the building. The use of the first floor is unclear, but was likely a hayloft accessed from the stables below.
The project was to convert the building to form a mix of artist studio space, workspace and cafe/events space and is to be leased to an arts organisation in Edinburgh. The works included signifcant demolition of unsympathetic addtions to the building, improvements to the thermal envelope, conservation works to the stone, slate and lead work and internal alterations to form the studios, meeting rooms and workspace. This included the addition of new stairs, WCs and a lift.
