Ellengowan
Dundee
Status
Phase 1 - RIBA Stage 7 / Phase 2 - RIBA Stage 5
Contract
£23 million
Client
Hillcrest Homes
Awards
Scottish Design Awards 2024, Affordable Housing Development of the Year (Silver)
Home for Scotland, Development of the year (Medium) Winner
Herald Property Award Finalist 2024
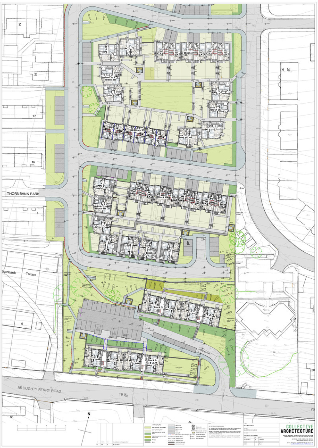
Collective Architecture are working for Hillcrest Homes on a major new housing development at Ellengowan Drive, Dundee, which replaces 124 x 2 bedroom cottage flats, in the popular but ageing residential area. The 124 Ellengowan cottage flats were originally constructed in the 1920s as a temporary solution to housing shortages between the wars. The lifespan of the properties were only intended to be 25 years and offered limited insulation, however nearly 100 years later they were still in use.
The new development will offers 130 affordable housing units providing a mix of amenity housing for elderly residents, mainstream and wheelchair flats, cottage flats and family terraced houses and importantly, Ellengowan tenants who wished to remain in the area, will be offered a new home within the regenerated development.
The development is being constructed in 2 phases. Phase 1 (70 properties) is currently on site. The existing houses have been demolished, the site has been cleared and construction work has commenced on the roads. The majority of the existing houses in the south part of the site (Phase 2) are still occupied. These tenants will have the opportunity to move into the new properties in Phase 1 when they are completed, thus retaining the sense of strong community.
The programmed construction work was due to start the same week that the national Lock Down came into force and had to stop immediately. Phase 1 is now expected to be completed within 2 years (August 2022) with Phase 2 commencing immediately after.
Collective Architecture and Hillcrest Homes, have worked closely with the community throughout the design process. A new public art-work will be created by Dundee Designer, Kirsty Thomas from Tom Pigeon. Kirsty held a drop in community workshop in 2019, where local residents shared their thoughts and memories for the new community, which will feed into this exciting creative commission.
We recognise the value of the community spirit that thrived amongst the residents of the original scheme. By working closely with the design team and the community on this regeneration project, we are confident that we can preserve and hopefully strengthen this same spirit within the new development.
Andy Kennedy, Hillcrest Homes
Our proposals for Ellengowan aim to preserve and enhance many of the excellent qualities of the previous scheme, which sadly is no longer fit for purpose, by ensuring that nearly every living room has an excellent view to the Tay and Fife hills and the greenery and strong sense of community is retained. The housing design, constructed in a high quality brick, with glazed brick feature artworks at every front door, is intended to provide strong, distinct, attractive frontages to the pedestrian friendly streets to foster a strong sense of identity and community pride.
Ewan Imrie, Collective Architecture
