Camphill School, Aberdeen
Aberdeen
Client
Camphill School Aberdeen
In 2018 Collective Architecture were selected from six shortlisted practices by Camphill School Aberdeen (CSA) to deliver a £10m capital investment development over two of its three campuses (Murtle Estate and Camphill Estate) via an RIAS open competition. The initial feasibility study, outlining the process, strategies and design principles for delivery of the 10 year Capital Development Plan was delivered in September 2019 with the design development for Phase 1 expecting to commence in early 2020.
Camphill School Aberdeen is a unique and inspiring place offering sector leading education, care and therapy to children and young people with additional support needs. As the founding place of the international Camphill Movement, CSA holds a special significance within the movement. To ensure the long-term viability and continued success of the School, CSA have developed a series of Strategic Objectives to ensure that they achieve their vision of making Camphill School a vibrant place to live, an inspiring place to learn and a fulfilling place to work.
The brief outlined the need for significant and urgent capital investment in Murtle and Camphill Estates to ensure that CSA can maintain and increase their services capacity whilst continuing to deliver excellent services within an environment that meets current Care standards. It was important that proposals should both improve and modernise CSA’s facilities whilst maintaining a strong emphasis on the ethos and values of the Camphill Movement.
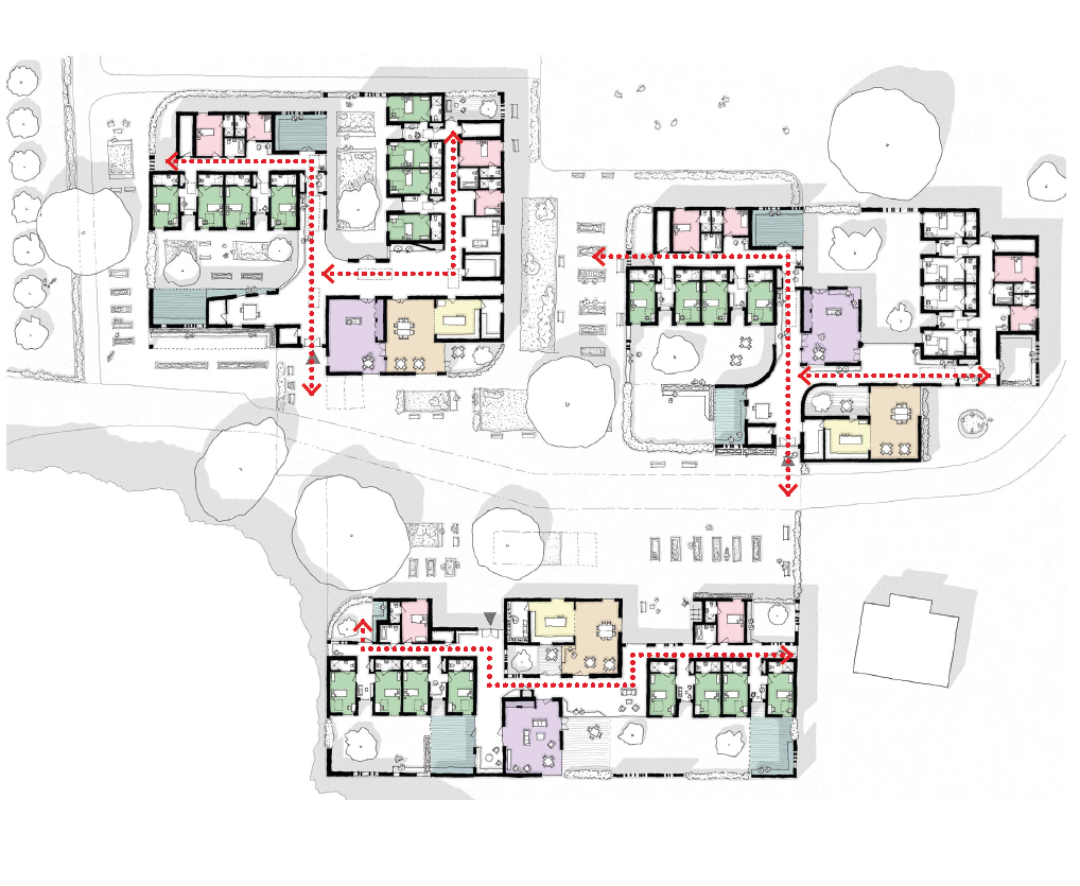
The key aims of this initial study were to establish a knowledge base of existing and anticipated needs to ensure the best use of resources, produce a coordinated vision and design approach to guide development of the two campuses, and to outline a phasing approach to deliver projects over the immediate to twenty-five year future. The feasibility proposals have been developed via an innovative, collaborative, design-led approach with local stakeholder and community involvement.
From the outset, Collective Architecture, placed importance on understanding the cultural, social and regulatory context in which the project sits. The concept designs for the different building typologies illustrate how developed design principles can be applied and how these principles can, and should, be flexibly applied in each project to respond to particularities in sites, brief and user requirements. Building typologies include - New Residential Homes, New Co-Worker Accommodation and the refurbishment and extension of Murtle House and Camphill Hall.
